Property Details
Description
Kindly submit an enquiry to register your details. We will keep you informed of available inspection times and provide you with the online application link.
——————————————-
Lease term: 12 months
Unfurnished
Available date: NOW
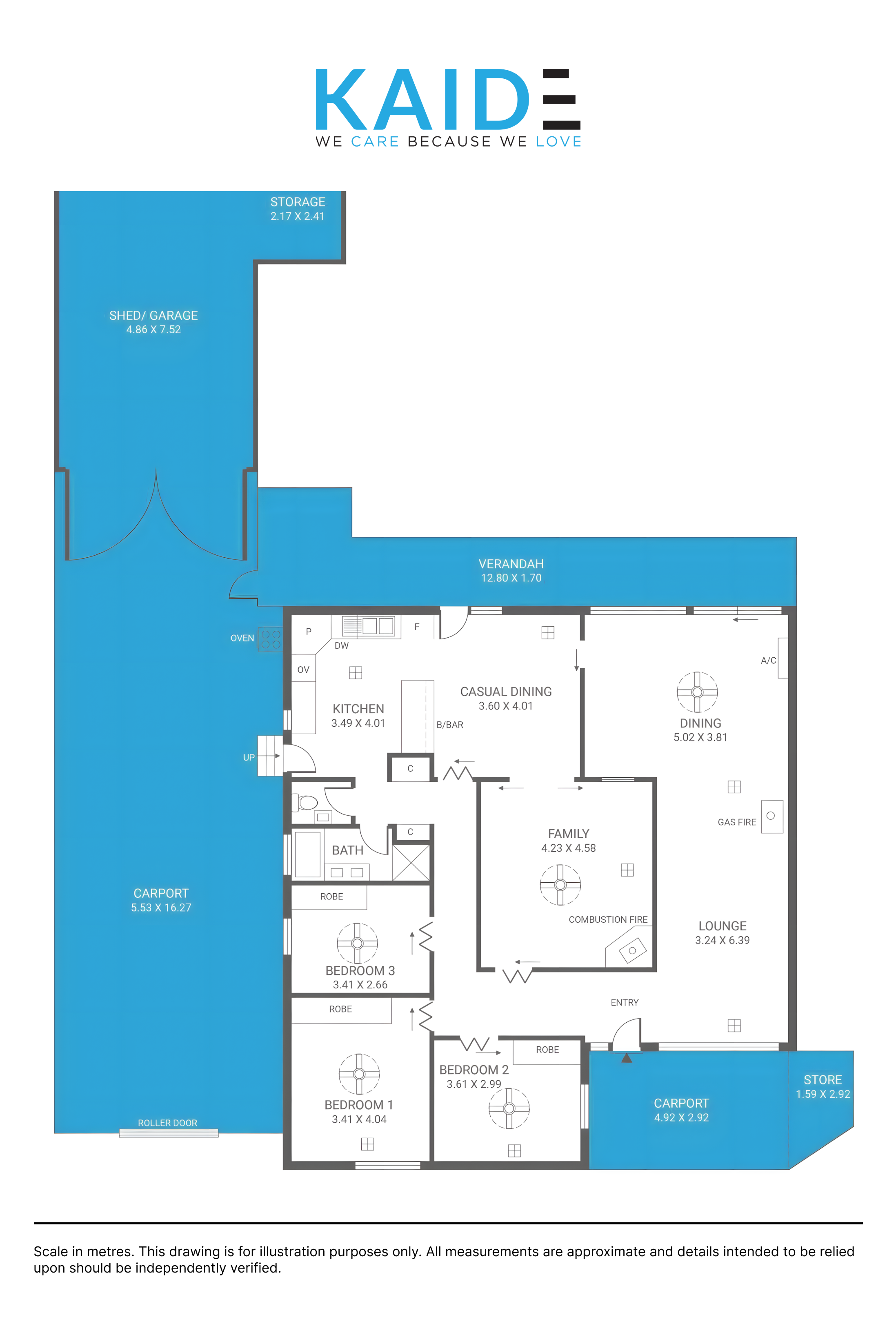
This well-appointed family home offers generous space, versatile living zones, and exceptional parking and storage options-perfect for families, tradies, or those needing extra room.
Designed for comfortable everyday living, the home features multiple living areas including a formal lounge, separate dining, and a central family room . The well-sized kitchen is positioned at the heart of the home, complete with ample storage, functional bench space, and adjoining casual dining area.Three well-proportioned bedrooms provide comfortable accommodation,The practical layout ensures both privacy and functionality for growing families.
Step outside to a long undercover verandah-ideal for entertaining or relaxing year-round. A standout feature of the property is the extensive parking, including dual carports and a large shed/garage with additional storage space, offering incredible flexibility.
Features:
-Three well-sized bedrooms (with robes)
-Multiple living areas: lounge, dining & family room
-Functional kitchen with ample storage
-Central bathroom with practical layout
-Large shed/garage with additional storage room
-Multiple carports with ample off-street parking
-Ideal for families, tradies, or those needing extra space
Locality:
-Close to local shops, schools, and everyday amenities
-Easy access to public transport
-1 min drive to IGA Local Grocer Hackham
-6 mins drive to Bunnings Noarlunga
-7 mins drive to Colonnades Shopping Centre
-8 mins drive to Chemist Warehouse Colonnades Shopping Centre
-9 mins drive to Christies Beach
-12 mins drive to Seaford
School Zone:
– Christies Beach High School
– Bowden Brompton Community School
Disclaimer:
The information contained here is gathered from a source that we believe to be reliable. However, we cannot guarantee its accuracy and do not accept any responsibility for its accuracy. All interested parties should rely on their own independent searches and legal advice.
RLA285210
Location
Agent



















